電源廠家全面解析:開關電源原理圖
來源:電源廠家
作者:昂佳科技
點擊:
次發表時間:2019-12-06 19:39:22

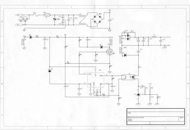
FS1:
由變壓器計算得到Iin值,以此Iin值(0.42A)可知使用公司共享料2A/250V,設計時亦須考慮Pin(max)時的Iin是否會超過保險絲的額定值。
TR1(熱敏電阻):
電源啟動的瞬間,由于C1(一次側濾波電容)短路,導致Iin電流很大,雖然時間很短暫,但亦可能對Power產生傷害,所以必須在濾波電容之前加裝一個熱敏電阻,以限制開機瞬間Iin在Spec之內(115V/30A,230V/60A),但因熱敏電阻亦會消耗功率,所以不可放太大的阻值(否則會影響效率),一般使用5Ω-10Ω熱敏,若C1電容使用較大的值,則必須考慮將熱敏電阻的阻值變大(一般使用在大瓦數的Power上)。
VDR1(突波吸收器):
當雷極發生時,可能會損壞零件,進而影響Power的正常動作,所以必須在靠AC輸入端 (Fuse之后),加上突波吸收器來保護Power(一般常用07D471K),但若有價格上的考慮,可先忽略不裝。
CY1,CY2(Y-Cap):
Y-Cap一般可分為Y1及Y2電容,若AC Input有FG(3 Pin)一般使用Y2- Cap , AC Input若為2Pin(只有L,N)一般使用Y1-Cap,Y1與Y2的差異,除了價格外(Y1較昂貴),絕緣等級及耐壓亦不同(Y1稱為雙重絕緣,絕緣耐壓約為Y2的兩倍,且在電容的本體上會有“回”符號或注明Y1),此電路蛭 蠪G所以使用Y2-Cap,Y-Cap會影響EMI特性,一般而言越大越好,但須考慮漏電及價格問題,漏電(Leakage Current )必須符合安規須求(3Pin公司標準為750uA max)。
CX1(X-Cap)、RX1:
X-Cap為防制EMI零件,EMI可分為Conduction及Radiation兩部分,Conduction規范一般可分為: FCC Part 15J Class B 、 CISPR 22(EN55022) Class B 兩種 , FCC測試頻率在450K~30MHz,CISPR 22測試頻率在150K~30MHz, Conduction可在廠內以頻譜分析儀驗證,Radiation 則必須到實驗室驗證,X-Cap 一般對低頻段(150K ~ 數M之間)的EMI防制有效,一般而言X-Cap愈大,EMI防制效果愈好(但價格愈高),若X-Cap在0.22uf以上(包含0.22uf),安規規定必須要有泄放電阻(RX1,一般為1.2MΩ 1/4W)。
LF1(Common Choke):
EMI防制零件,主要影響Conduction 的中、低頻段,設計時必須同時考慮EMI特性及溫升,以同樣尺寸的Common Choke而言,線圈數愈多(相對的線徑愈細),EMI防制效果愈好,但溫升可能較高。
BD1(整流二極管):
將AC電源以全波整流的方式轉換為DC,由變壓器所計算出的Iin值,可知只要使用1A/600V的整流二極管,因為是全波整流所以耐壓只要600V即可。
C1(濾波電容):
由C1的大小(電容值)可決定變壓器計算中的Vin(min)值,電容量愈大,Vin(min)愈高但價格亦愈高,此部分可在電路中實際驗證Vin(min)是否正確,若AC Input 范圍在90V~132V (Vc1 電壓最高約190V),可使用耐壓200V的電容;若AC Input 范圍在90V~264V(或180V~264V),因Vc1電壓最高約380V,所以必須使用耐壓400V的電容。
D2(輔助電源二極管):
整流二極管,一般常用FR105(1A/600V)或BYT42M(1A/1000V),兩者主要差異:
耐壓不同(在此處使用差異無所謂)
VF不同(FR105=1.2V,BYT42M=1.4V)
R10(輔助電源電阻):
主要用于調整PWM IC的VCC電壓,以目前使用的3843而言,設計時VCC必須大于8.4V(Min. Load時),但為考慮輸出短路的情況,VCC電壓不可設計的太高,以免當輸出短路時不保護(或輸入瓦數過大)。
C7(濾波電容):
輔助電源的濾波電容,提供PWM IC較穩定的直流電壓,一般使用100uf/25V電容。
Z1(Zener 二極管):
當回授失效時的保護電路,回授失效時輸出電壓沖高,輔助電源電壓相對提高,此時若沒有保護電路,可能會造成零件損壞,若在3843 VCC與3843 Pin3腳之間加一個Zener Diode,當回授失效時Zener Diode會崩潰,使得Pin3腳提前到達1V,以此可限制輸出電壓,達到保護零件的目的.Z1值的大小取決于輔助電源的高低,Z1的決定亦須考慮是否超過Q1的VGS耐壓值,原則上使用公司的現有料(一般使用1/2W即可).
R2(啟動電阻):
提供3843第一次啟動的路徑,第一次啟動時透過R2對C7充電,以提供3843 VCC所需的電壓,R2阻值較大時,turn on的時間較長,但短路時Pin瓦數較小,R2阻值較小時,turn on的時間較短,短路時Pin瓦數較大,一般使用220KΩ/2W M.O。
R4 (Line Compensation):
高、低壓補償用,使3843 Pin3腳在90V/47Hz及264V/63Hz接近一致(一般使用750KΩ~1.5MΩ 1/4W之間)。
R3,C6,D1 (Snubber):
此三個零件組成Snubber,調整Snubber的目的:1.當Q1 off瞬間會有Spike產生,調整Snubber可以確保Spike不會超過Q1的耐壓值,2.調整Snubber可改善EMI.一般而言,D1使用1N4007(1A/1000V)EMI特性會較好.R3使用2W M.O.電阻,C6的耐壓值以兩端實際壓差為準(一般使用耐壓500V的陶質電容)。
Q1(N-MOS):
目前常使用的為3A/600V及6A/600V兩種,6A/600V的RDS(ON)較3A/600V小,所以溫升會較低,若IDS電流未超過3A,應該先以3A/600V為考慮,并以溫升記錄來驗證,因為6A/600V的價格高于3A/600V許多,Q1的使用亦需考慮VDS是否超過額定值。
R8:
R8的作用在保護Q1,避免Q1呈現浮接狀態。
R7(Rs電阻):
3843 Pin3腳電壓最高為1V,R7的大小須與R4配合,以達到高低壓平衡的目的,一般使用2W M.O.電阻,設計時先決定R7后再加上R4補償,一般將3843 Pin3腳電壓設計在0.85V~0.95V之間(視瓦數而定,若瓦數較小則不能太接近1V,以免因零件誤差而頂到1V)。
R5,C3(RC filter):
濾除3843 Pin3腳的噪聲,R5一般使用1KΩ 1/8W,C3一般使用102P/50V的陶質電容,C3若使用電容值較小者,重載可能不開機(因為3843 Pin3瞬間頂到1V);若使用電容值較大者,也許會有輕載不開機及短路Pin過大的問題。
R9(Q1 Gate電阻 ):
R9電阻的大小,會影響到EMI及溫升特性,一般而言阻值大,Q1 turn on / turn off的速度較慢,EMI特性較好,但Q1的溫升較高、效率較低(主要是因為turn off速度較慢);若阻值較小, Q1 turn on / turn off的速度較快,Q1溫升較低、效率較高,但EMI較差,一般使用51Ω-150Ω 1/8W。
R6,C4(控制振蕩頻率):
決定3843的工作頻率,可由Data Sheet得到R、C組成的工作頻率,C4一般為10nf的電容(誤差為5%),R6使用精密電阻,以DA-14B33為例,C4使用103P/50VPE電容,R6為3.74KΩ 1/8W精密電阻,振蕩頻率約為45 KHz。
C5:
功能類似RC filter,主要功用在于使高壓輕載較不易振蕩,一般使用101P/50V陶質電容。
U1(PWM IC):
3843是PWM IC的一種,由Photo Coupler (U2)回授信號控制Duty Cycle的大小,Pin3腳具有限流的作用(最高電壓1V),目前所用的3843中,有KA3843(SAMSUNG)及UC3843BN(S.T.)兩種,兩者腳位相同,但產生的振蕩頻率略有差異,UC3843BN較KA3843快了約2KHz,fT的增加會衍生出一些問題(例如:EMI問題、短路問題),因KA3843較難買,所以新機種設計時,盡量使用UC3843BN。
R1、R11、R12、C2(一次側回路增益控制):
3843內部有一個Error AMP(誤差放大器),R1、R11、R12、C2及Error AMP組成一個負回授電路,用來調整回路增益的穩定度,回路增益,調整不恰當可能會造成振蕩或輸出電壓不正確,一般C2使用立式積層電容(溫度持性較好)。
U2(Photo coupler)
光耦合器(Photo coupler)主要將二次側的信號轉換到一次側(以電流的方式),當二次側的TL431導通后,U2即會將二次側的電流依比例轉換到一次側,此時3843由Pin6 (output)輸出off的信號(Low)來關閉Q1,使用Photo coupler的原因,是為了符合安規需求(primacy to secondary的距離至少需5.6mm)。
R13(二次側回路增益控制):
控制流過Photo coupler的電流,R13阻值較小時,流過Photo coupler的電流較大,U2轉換電流較大,回路增益較快(需要確認是否會造成振蕩),R13阻值較大時,流過Photo coupler的電流較小,U2轉換電流較小,回路增益較慢,雖然較不易造成振蕩,但需注意輸出電壓是否正常。
U3(TL431)、R15、R16、R18
調整輸出電壓的大小, ,輸出電壓不可超過38V(因為TL431 VKA最大為36V,若再加Photo coupler的VF值,則Vo應在38V以下較安全),TL431的Vref為2.5V,R15及R16并聯的目的使輸出電壓能微調,且R15與R16并聯后的值不可太大(盡量在2KΩ以下),以免造成輸出不準。
R14,C9(二次側回路增益控制):
控制二次側的回路增益,一般而言將電容放大會使增益變慢;電容放小會使增益變快,電阻的特性則剛好與電容相反,電阻放大增益變快;電阻放小增益變慢,至于何謂增益調整的最佳值,則可以Dynamic load來量測,即可取得一個最佳值。
D4(整流二極管):
因為輸出電壓為3.3V,而輸出電壓調整器(Output Voltage Regulator)使用TL431(Vref=2.5V)而非TL432(Vref=1.25V),所以必須多增加一組繞組提供Photo coupler及TL431所需的電源,因為U2及U3所需的電流不大(約10mA左右),二極管耐壓值100V即可,所以只需使用1N4148(0.15A/100V)。
C8(濾波電容):
因為U2及U3所需的電流不大,所以只要使用1u/50V即可。
D5(整流二極管):
輸出整流二極管,D5的使用需考慮:
電流值
二極管的耐壓值
以此電源為例,輸出電流4A,使用10A的二極管(Schottky)應該可以,但經點溫升驗證后發現D5溫度偏高,所以必須換為15A的二極管,因為10A的VF較15A的VF 值大。耐壓部分40V經驗證后符合,因此最后使用15A/40V Schottky。
C10,R17(二次側snubber) :
D5在截止的瞬間會有spike產生,若spike超過二極管(D5)的耐壓值,二極管會有被擊穿的危險,調整snubber可適當的減少spike的電壓值,除保護二極管外亦可改善EMI,R17一般使用1/2W的電阻,C10一般使用耐壓500V的陶質電容,snubber調整的過程(264V/63Hz)需注意R17,C10是否會過熱,應避免此種情況發生。
C11,C13(濾波電容):
二次側第一級濾波電容,應使用內阻較小的電容(LXZ,YXA…),電容選擇是否洽當可依以下三點來判定:
輸出Ripple電壓是符合規格
電容溫度是否超過額定值
電容值兩端電壓是否超過額定值
R19(假負載):
適當的使用假負載可使線路更穩定,但假負載的阻值不可太小,否則會影響效率,使用時亦須注意是否超過電阻的額定值(一般設計只使用額定瓦數的一半)。
L3,C12(LC濾波電路):
LC濾波電路為第二級濾波,在不影響線路穩定的情況下,一般會將L3 放大(電感量較大),如此C12可使用較小的電容值。
免責聲明:部分文章信息來源于網絡以及網友投稿,本網站只負責對文章進行整理、排版、編輯,是出于傳遞 更多信息之目的,并不意味著贊同其觀點或證實其內容的真實性,如本站文章和轉稿涉及版權等問題,請作者在及時聯系本站,我們會盡快處理
同類文章排行
- 大神自己自制汽車應急啟動電源?還不如自己備一個
- 汽車啟動不了,導致汽車無法啟動的五大原因
- 汽車應急啟動電源使用方法及原理圖
- 2017排行前十的汽車應急啟動電源品牌
- 汽車應急啟動電源工作原理
- 汽車應急啟動電源使用排名評測
- 怎么選購汽車應急啟動電源?哪個牌子汽車應急啟動電源比較好?
- 汽車應急啟動電源充不了電怎么辦?昂佳科技教你解決方法
- 汽車應急啟動電源常見問題分析及解決方案
- 汽車應急啟動電源為什么用手機充電器充不了電?








